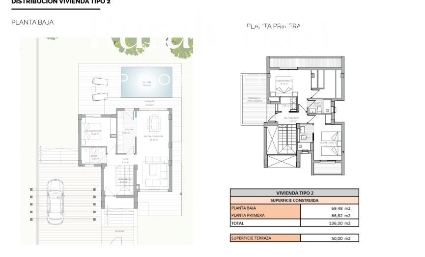
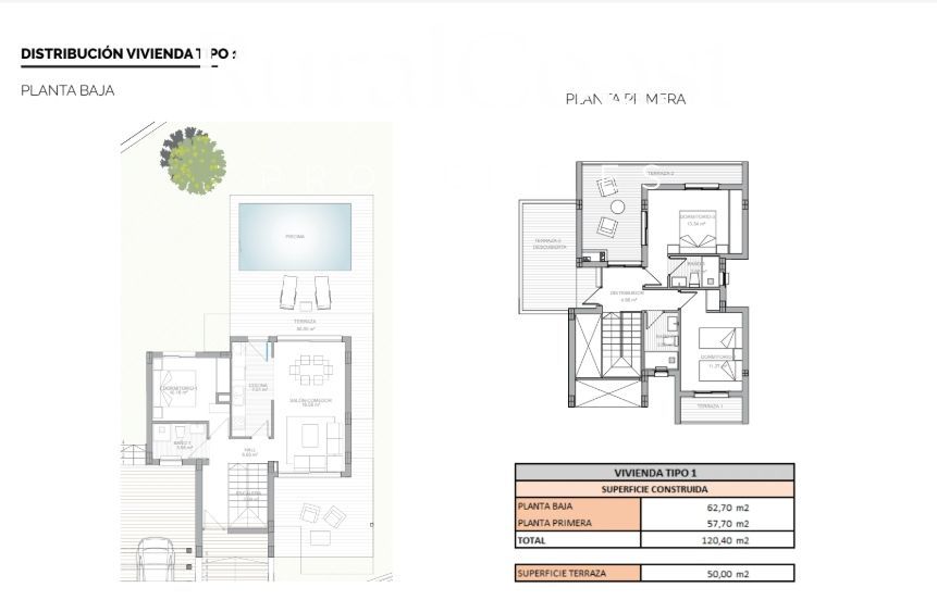
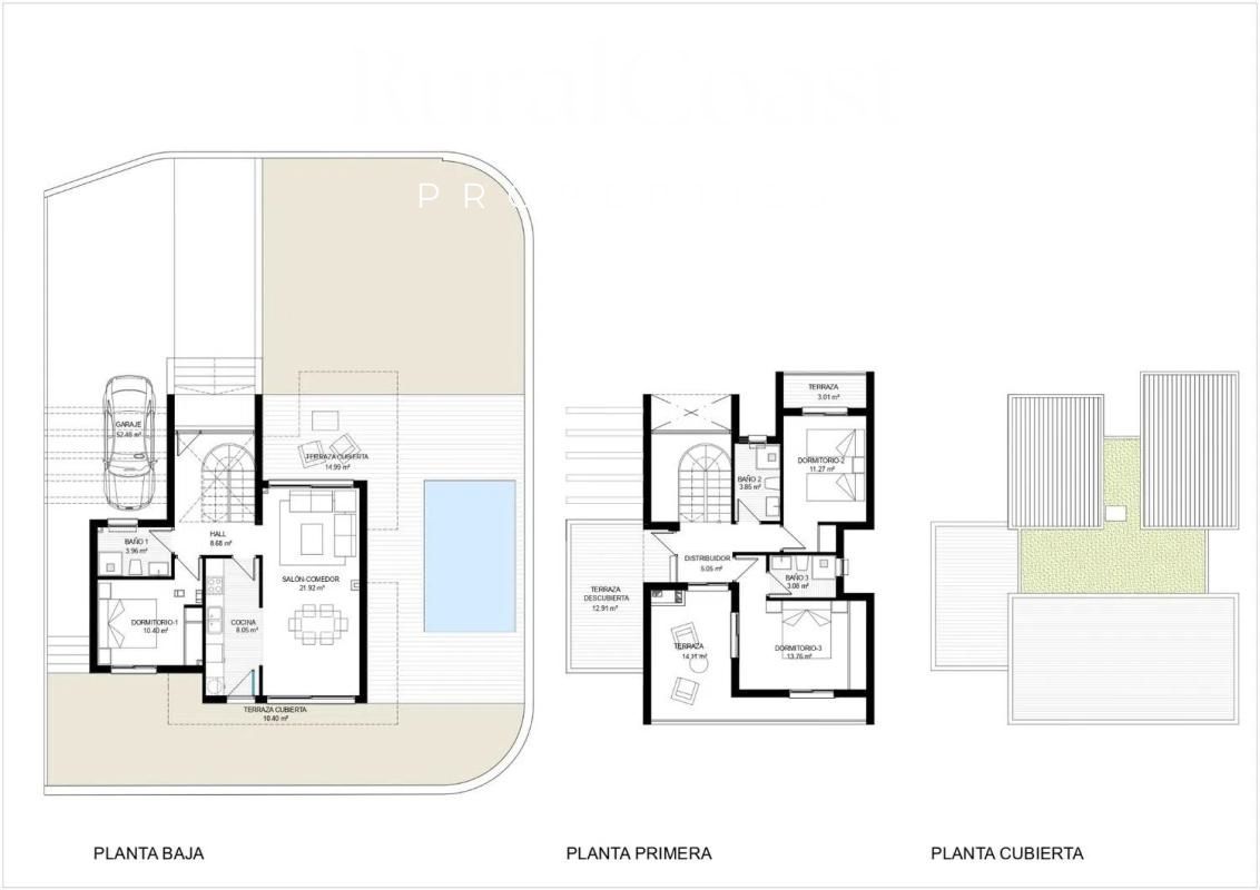
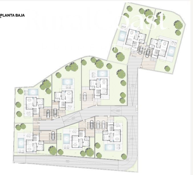
This exquisite villa is designed for those who wish to enjoy spacious living areas. With a total built area of 150 square meters, it spans across two floors. It sits on a private plot of 345 square meters, featuring a secure perimeter enclosure, a swimming pool, parking area, motorized access, and a finished garden complete with gravel and ornamental plants, as well as a barbecue area.
The villa´s ground floor includes an open-plan kitchen, a living-dining area, a guest bathroom, and a master bedroom with an en-suite bathroom. The first floor comprises two additional bedrooms, a bathroom, and a large terrace. This model can also be constructed on a single floor, allowing customization of the number of bedrooms and bathrooms to suit the buyer´s preferences. Various options are available upon request.
The new construction in this residential area offers numerous advantages, from modern architecture to customizable layouts. Homeowners can enjoy privacy and tranquility while being surrounded by beautiful landscaped gardens and luxurious amenities. The potential for personalized living spaces makes it an attractive option for those seeking a tailor-made home experience.
Living in La Nucía presents the perfect blend of a peaceful lifestyle and vibrant community offerings. This charming city is known for its inviting atmosphere and beautiful scenery. Residents can enjoy a variety of recreational activities and cultural events, making it a wonderful place to call home. The convenience of local amenities and the appeal of serene surroundings provide an idyllic living environment for families and individuals alike.

If you are interested in this property, contact us by phone and ask for one of our agents.
Not exactly what you are looking for? We offer similar properties below