C a r g a n d o . . .
Adosado en primera línea del campo de golf, con 4 dormitorios, garaje para 4 coches, jardín y terraza de 30 m².
  • Inicio
  • Venta
  • Adosado en primera línea del campo de golf, con 4 dormitorios, garaje para 4 coches, jardín y terraza de 30 m².

Adosado en primera línea del campo de golf, con 4 dormitorios, garaje para 4 coches, jardín y terraza de 30 m². Alicante/Alacant

Ref: 8126
¡Comparta esta propiedad!
¿Está interesado en esta propiedad? ¡Contacte ahora!
Adosado Alicante/Alacant
Precio 699.000€
Añadir a Mis favoritos
Precio 699.000€
Descripción

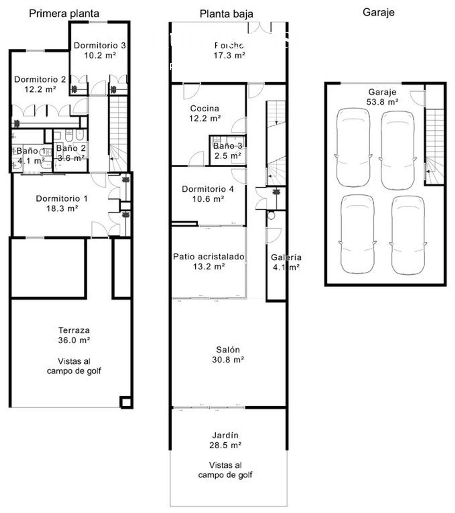
La vivienda, distribuida en tres niveles (planta baja, primera planta y sótano), tiene una superficie de 264 m² construidos y 175 m² útiles, perfectamente aprovechados.


Distribución
- Planta baja: Espaciosa zona de día con salón-comedor, cocina independiente completamente equipada, un dormitorio, aseo, patio interior cubierto con techo de cristal motorizado y galería acristalada. Desde el salón se accede al jardín privado orientado al este, con preciosas vistas abiertas y directas al campo de golf.
- Primera planta: Tres dormitorios con armarios empotrados y dos baños completos. El dormitorio principal dispone de baño en suite con ducha y salida a una espectacular terraza de más de 30 m², también con vistas despejadas al campo de golf. El segundo baño, junto a las habitaciones infantiles, cuenta con bañera.
- Sótano: Garaje privado con acceso directo a la vivienda, con capacidad para hasta cuatro vehículos y zona de almacenaje.

Detalles técnicos y extras
- Orientación este-oeste, con luz natural durante todo el día.
- Sistema de climatización por conductos (aire acondicionado y calefacción), independiente en cada planta.
- 16 placas solares con 2 baterías, que cubren por completo las necesidades energéticas de la vivienda.
- Sistema de agua caliente dual: termo eléctrico y butano, con cambio rápido mediante interruptor.
- Suelos de tarima flotante, ventanas Climalit de seguridad y puerta blindada.
- Armarios empotrados en pasillo y dormitorios.
- Reformas recientes en cocina, baños, suelos, puertas y pintura.
- Estado impecable: para entrar a vivir.

Entorno
Ubicada en una de las zonas más demandadas de Playa San Juan, ideal para familias. Junto al campo de golf y rodeada de zonas verdes, se encuentra a tan solo 1,5 km del mar y cuenta con excelente conexión mediante tranvía y autobuses. Muy cerca de colegios, universidad, hospital, supermercados, restaurantes, instalaciones deportivas y zonas infantiles. Una oportunidad única para vivir en un entorno tranquilo, cuidado y con todos los servicios a mano.

Características
Dormitorios
Dormitorios 4
Baños
Baños 3
Garaje
Garaje 1
Piscina
Piscina
Superficie
Superficie 264m2
Y además...
  • Armarios
  • Aire Acondicionado
  • Piscina Comunitaria

Sitúela en el mapa

Ubicación aproximada
Ubicación aproximada

Solicite información sobre esta propiedad

Si le interesa este inmueble contáctenos por teléfono y pregunte por uno de nuestros agentes.

¡Llámenos!

En nuestro teléfono le atenderemos de forma totalmente personalizada.

(+34)965063315

Formulario de contacto

También puede ponerse en contacto con nosotros rellenando el formulario. Gracias.

Acepto recibir información comercial

Propiedades relacionadas

¿No es exactamente lo que está buscando? A continuación le ofrecemos propiedades similares

AdosadoPolop

4992 488.125€
Ver detalles
Dormitorios 3
Baños 2
Piscina
M2 terreno 120m2
M2 vivienda 120m2

AdosadoFinestrat

7943 745.000€
https://secondresidence.com/property/luxury-key-ready-villa-sea-golf-views/
Ver detalles
Dormitorios 3
Baños 3
Piscina
M2 terreno 413m2
M2 vivienda 307m2

AdosadoAlgorfa

5500 473.000€
Ver detalles
Dormitorios 3
Baños 3
Piscina
M2 terreno 182m2
M2 vivienda 199m2

AdosadoPolop

7180 475.000€
Villas de lujo en Polop con vistas al mar
Ver detalles
Obra nueva
Dormitorios 3
Baños 2
Piscina
M2 terreno 433m2
M2 vivienda 108m2

AdosadoPolop

7181 598.750€
Villas de lujo en Polop con vistas al mar
Ver detalles
Obra nueva
Dormitorios 3
Baños 2
Piscina
M2 terreno 433m2
M2 vivienda 218m2

AdosadoFinestrat

7167 555.000€
Precioso chalet de lujo en Finestrat con vistas al mar y montaña
Ver detalles
Obra nueva
Dormitorios 4
Baños 2
Piscina
M2 terreno 384m2
M2 vivienda 158m2